PORTFOLIO

Baker Properties’ portfolio includes mixed-use, office, and residential properties in sought-after seacoast communities in New Hampshire and beyond.

Our Properties:

[su_prop_cat]

Bowl-O-Rama Plaza

599 Lafayette Road

Portsmouth, NH

Purchased in January 2015, Bowl-O-Rama Plaza is a 54,000sf neighborhood shopping center in one of Portsmouth’s thriving commercial districts. The property was renovated in 2015 and is 91% leased – bringing new tenants and curb appeal to this historic and popular destination.

Heritage Commons

2800 Lafayette Road

Portsmouth, NH

Purchased in 2019, with many upgrades since, Heritage Commons is an updated plaza featuring a great location in the neighborhood of Walmart and 1/2 mile south of McKinnon’s Market and the 10-screen Cinemagic theater. Tenants include Tokyo & Saigon, Taaza Café, Hertz, Jubilations, Edward Jones, GEICO, Gel Nails and Spa, Wake Up Pretty, Miracle Ear, One Main Financial, Standard Vapor, F45 Training, Route One Barbershop and Shave Parlour, The Block Collaborative, and the Beach Plum.

Exeter Crossing Plaza

1 & 3 Portsmouth Avenue

Exeter, NH

This previously neglected property was purchased in joint venture with Sarnia Properties in January 2013. The project put our design, redevelopment, and leasing skills to good use in the development of a modern and convenient shopping center with first class tenants and facilities. Tenants at the property include Lindt Chocolate, Georgetown Bank, Subway, Allstate Insurance, Convenient MD, and Little Sprouts Daycare. The redevelopment included the demolition of three buildings, construction of two new buildings, new facade throughout, upgraded signage, new parking lot, curbing, rain garden, and extensive landscaping. This property was sold in 2021

Pease Tradeport

177 Corporate Drive

Portsmouth, nh

Purchased in July 2016, 177 Corporate Drive is a 12,459sf office building 100% leased to Tighe & Bond, Inc. Tighe & Bond is a top engineering firm in New England with over 100 years of success. The building is a highly efficient structure conveniently located in the Pease Trade Port Office Park in Portsmouth, New Hampshire.

501 Islington

501 Islington Street

Portsmouth, nh

Purchased in November, 2011, following extensive renovations, this conveniently located office building is currently 92% leased. The building is less than a mile from downtown Portsmouth and offers ample parking, and attractive spaces. The attractive tenant mix including SIS Bank, People’s United Insurance, Summit Group, Escape & Rejuvenate Spa, Signature Title & Escrow and most recently Naturae doctor’s offices. With ease of access to Route 95 and Route 1 bypass, 501 Islington also offers an abundance of nearby restaurants, shops, and other activities in the area which are perfect for our tenants.

953 Islington

953 Islington Street

Portsmouth, nh

Purchased in November 2012, following extensive renovations, this conveniently located office building is currently 99% leased. This property is home to the Baker Properties team as well as numerous other tenants including Great Bay Renewables, Profile Homes, ECoast IT, Ricardo Trading, Treeno Software, and First Street Business Brokers that enjoy the location’s ease of access and close-by management.

Colonial Standish, llc

71 Colonial Drive

Standish, ME

With 75K+ square feet of shopping center space, this property is anchored by Hannaford Supermarket with a recently renewed lease. The shopping center is located 17 miles West of Portland, ME with close proximity to Sebago Lake. The property is 100% leased, with other tenants including Gorham Savings Bank, Maine Medical Center, Sasco Bay Ortho & Sports Therapy, and the US Post Office.

Mcintosh dover &
Mcintosh commons

23 Cataract Avenue

Dover, NH

Located in Dover, NH with quick access to Rt 16 (10-minute drive to Portsmouth, NH), this property includes 2 redeveloped buildings formerly operated as McIntosh College and an approved 4-building, 156-unit apartment development project on the large 12-acre site. Construction is scheduled to begin in 2023. 

Hampton Airfield

9a Lafayette road

North Hampton, NH

 Purchased in July 2013, Hampton Airfield is a family-friendly active airport geared towards pilots, aviation enthusiasts and related businesses. The property is currently 100% leased and has undergone substantial improvements including a paved runway and taxi-ways, new hangars, and a new restaurant and café. Following renovations and development of new amenities, the property is truly a premier stop for all local pilots, aviation businesses, and families.

31 Portsmouth Avenue

31 Portsmouth Avenue

Exeter, NH

Purchased in April 2016, 31 Portsmouth Avenue is a 5,400sf retail building which has undergone a full renovation. The property currently houses an Aroma Joe’s café with drive thru service and additional tenants complete its 100% occupancy.

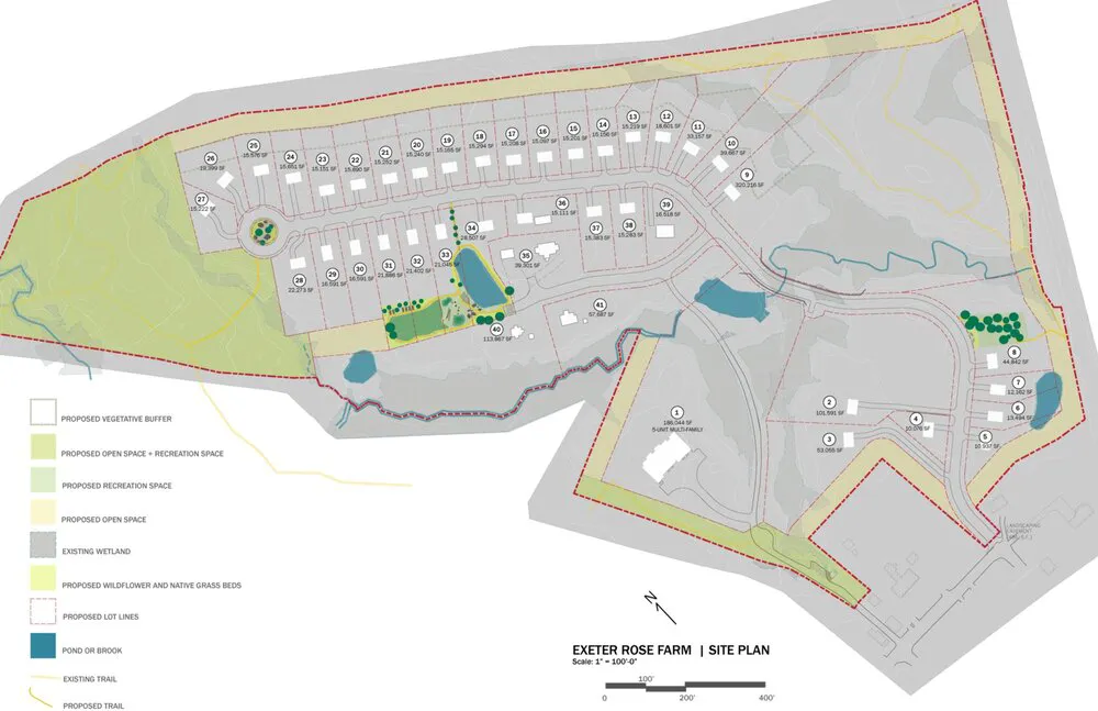
Rose Farm

80 Oak Street Extension

Exeter, NH

A walkable neighborhood designed to celebrate the everyday.

Located just a short walk from downtown Exeter, New Hampshire, Exeter Rose Farm is a lifestyle community that draws on the vibrancy and richness of downtown Exeter while maintaining a serene setting at the edge of the Town Forest’s conservation lands. With innovative neighborhood amenities to serve and unite a diverse community of residents, Exeter Rose Farm is a 44-lot residential community slated to begin construction in 2023. Located on the site of a former nursery used for flower cultivation and adjacent to the Town Forest, Exeter Rose Farm features enduring residences designed to celebrate both family and professional life at a range of sizes and configurations.

exeterrosefarm.com

Carriage Towne Plaza

53 Church Street

Kingston, NH

Purchased in December 2013, a focal point in the town of Kingston, NH, Carriage Towne Plaza underwent significant renovations including new granite curbing, new signage, a renovated parking lot, various exterior renovations, and system upgrades. The property remained 100% leased, including new tenancy with extended leases, and was sold in 2015.

Arlington Pointe

2555 Riverside Drive

Upper Arlington, OH

Purchased in January 2006, Arlington Pointe Apartments is a 112-unit apartment complex consisting of two, four story buildings. The property is in top-rated Upper Arlington school district and is convenient to downtown Columbus, The Ohio State University, and attractive business and shopping districts. Baker Properties sold its interest in the property in 2017.

CONTACT

todd@bakerprop.com

953 Islington Street
Suite 23D
Portsmouth, NH 03801
603-425-8598

© 2023 Baker Properties, LLC

Scroll to Top